当前位置:首页 > 北海园区 > 北海要闻

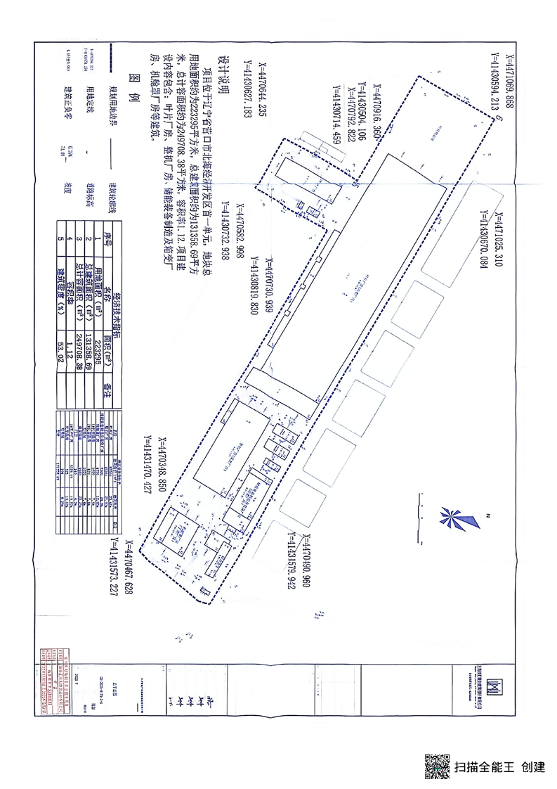
2025年营口北海经开区《建设工程规划许可》的工程设计方案的总平面图批后公布以及证书主动公开(营口国盛中济)

来源:北海管委会

作者:

发布时间:2026-01-15

【字号:

分享:




  • 附件:
  • 视频:
扫一扫在手机打开当前页